G49W(無襯里)、G49J(襯膠)三通隔膜閥專用于控制非腐蝕性或一般腐蝕性介質,閥體內腔表面無襯里或覆有可供選擇的各種橡膠,適用于不同工作溫度和流體管路。
適用溫度:≤85℃、≤100℃、 ≤120℃、≤150℃(按照襯里和隔膜材料)
壓力等級:PN1.0
當前隔膜閥廣泛地應用于城建、化工、冶金、石油、制藥、食品、飲料、環保中。
隔膜閥是一種特殊形式的截止閥;

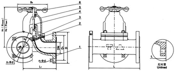
部件列表:1、閥體 2、隔膜 3、閥瓣 4、閥桿 5、閥蓋 6、手輪
| DN mm |
公稱壓力 MPa |
工作壓力 MPa |
L (mm) |
D (mm) |
D1 (mm) |
n-φd (mm) |
F (mm) |
H1 (mm) |
H2 (mm) |
D0 (mm) |
質量 |
|---|---|---|---|---|---|---|---|---|---|---|---|
| 25 | 1.0 | 1.0 | 160 | 96 | 115 | 85 | 4-14 | 108 | 120 | 66 | 5.5 |
| 32 | 180 | 118 | 135 | 100 | 4-18 | 138 | 157 | 96 | 8.5 | ||
| 40 | 200 | 135 | 145 | 110 | 4-18 | 147 | 167 | 96 | 12.5 | ||
| 50 | 230 | 150 | 160 | 125 | 4-18 | 167 | 192 | 96 | 17 | ||
| 65 | 290 | 182 | 180 | 145 | 4-18 | 194 | 229 | 165 | 24.5 | ||
| 80 | 310 | 210 | 195 | 160 | 4-18 | 212 | 252 | 230 | 33.5 |
溫馨提示:
本文中所有文字、數據、圖片均只適用于參考。需要查看更多的G49W(無襯里)、 G49J(襯膠)三通隔膜閥性能參數、結構尺寸參數、價格等詳情,或要求印刷樣本,請聯系我們。
主營產品:氣動調節閥 - 電動調節閥 - 自力式調節閥
版版權所有 © 上海大田閥門管道工程有限公司
地址:上海市浦東新區川宏路528號宏圖大樓5樓
