P41X、P42X系列快速排(吸)氣閥適用于工作介質為水的管路上,以提高輸送水設備的效率和保護管道不致變形破裂,是管道的必備之設備。快速排氣閥是用于壓力輸送水管道的排氣。

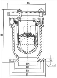
| 公稱通徑 (mm) |
尺寸(mm) | |||||
|---|---|---|---|---|---|---|
| H | D | D0 | D1 | D1 | Z-фd | |
| 50 | 270 | 160 | 200 | 125 | 125 | 4-14 |
| 65 | 270 | 180 | 200 | 145 | 145 | 4-18 |
| 80 | 330 | 195 | 230 | 160 | 160 | 4-18 |
| 100 | 350 | 215 | 250 | 180 | 180 | 8-18 |
| 150 | 450 | 280 | 300 | 240 | 240 | 8-23 |
| 200 | 470 | 335 | 330 | 295 | 295 | 8-23 |
溫馨提示:
本文中所有文字、數據、圖片均只適用于參考。需要查看更多的P41X、P42X系列快速排(吸)氣閥 性能參數、結構尺寸參數、價格等詳情,或要求印刷樣本,請聯系我們。
主營產品:氣動調節閥 - 電動調節閥 - 自力式調節閥
版版權所有 © 上海大田閥門管道工程有限公司
地址:上海市浦東新區川宏路528號宏圖大樓5樓
