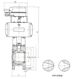
大田閥門公司生產銷售的氣動線性調節球閥采用V型通道球體的超短球閥與氣動執行器、閥門定位器組成,可實現微小流量的線性調節,是一種用途廣泛的新型調節閥。

| 通徑DN | d | L | D | K | D1 | n-Φd | F | H | W | |
|---|---|---|---|---|---|---|---|---|---|---|
| mm | in | |||||||||
| 10 | 3/8″ | 10 | 32 | 85 | 60 | 38 | 4-M12 | 2 | 310 | 105 |
| 15 | 1/2″ | 14 | 35 | 90 | 65 | 46 | 4-M12 | 2 | 315 | 140 |
| 20 | 3/4″ | 19 | 38 | 100 | 75 | 56 | 4-M12 | 2 | 325 | 140 |
| 25 | 1″ | 24 | 42 | 110 | 85 | 65 | 4-M12 | 2 | 330 | 140 |
| 32 | 1 1/4″ | 29 | 50 | 130 | 100 | 76 | 4-M16 | 3 | 365 | 16 |
| 40 | 1 1/2″ | 38 | 60 | 145 | 110 | 84 | 4-M16 | 3 | 375 | 164 |
| 50 | 2″ | 48 | 70 | 160 | 125 | 99 | 4-M16 | 3 | 398 | 190 |
| 65 | 2 1/2″ | 64 | 95 | 180 | 145 | 118 | 4-M16 | 3 | 408 | 210 |
| 80 | 3″ | 76 | 118 | 195 | 160 | 132 | 8-M16 | 3 | 450 | 247 |
| 100 | 4″ | 95 | 140 | 215 | 180 | 156 | 8-M16 | 3 | 465 | 278 |
| 125 | 5″ | 118 | 195 | 245 | 210 | 184 | 8-M16 | 3 | 525 | 348 |
| 150 | 6″ | 150 | 260 | 280 | 240 | 211 | 8-M20 | 3 | 578 | 378 |
| 200 | 8″ | 200 | 350 | 335 | 295 | 266 | 12-M20 | 3 | 650 | 432 |
結構長度:Q/OLF002-88
法蘭標準:JB79亦可按GB9113、ANSI B16.5、B2212
主營產品:氣動調節閥 - 電動調節閥 - 自力式調節閥
版版權所有 © 上海大田閥門管道工程有限公司
地址:上海市浦東新區川宏路528號宏圖大樓5樓
