您現在所在位置:大田閥門 >> 襯氟閥門(襯里閥門)
設計與制造:GB12238
結構長度:GB12221
法蘭連接尺寸:GB4216、JB78、JB79
D71(半襯)、D71Fs(全襯)對夾襯氟塑料蝶閥專用于控制非腐蝕性或強腐蝕性介質,閥體內腔表面覆有可供選擇的各種氟塑料,適用于不同工作溫度和流體管路。具有強度高、耐腐蝕性能好的特點。
適用溫度:≤100℃、≤120℃、≤150℃、(可按照襯里材料)
壓力等級:0.6、1.0、1.6
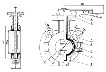
1、閥體2、蝶圈3、蝶板4、四氟圈5、碟形彈性墊圈6、手柄定位板7、手柄

| 公稱通徑 | L | D mm |
D1 mm |
D2 mm |
n-Фd mm |
f mm |
D0 mm | H mm | 質量 | |||||||||
|---|---|---|---|---|---|---|---|---|---|---|---|---|---|---|---|---|---|---|
| DN | NPS | 0.6 | 1.0 | 1.6 | 0.6 | 1.0 | 1.6 | 0.6 | 1.0 | 1.6 | 0.6 | 1.0 | 1.6 | |||||
| 40 | 11/2 | 43 | 130 | 150 | 145 | 100 | 110 | 110 | 80 | 88 | 85 | 4-14 | 4-18 | 4-18 | 3 | 264 | 132 | 2.5 |
| 50 | 2 | 43 | 140 | 165 | 160 | 110 | 125 | 125 | 90 | 93 | 100 | 4-14 | 4-18 | 4-18 | 3 | 264 | 132 | 3.5 |
| 65 | 21/2 | 46 | 160 | 185 | 180 | 130 | 145 | 145 | 110 | 106 | 120 | 4-14 | 4-18 | 4-18 | 3 | 290 | 155 | 4.5 |
| 80 | 3 | 46 | 182 | 200 | 195 | 150 | 160 | 160 | 125 | 123 | 130 | 4-18 | 4-18 | 8-18 | 3 | 290 | 160 | 6 |
| 100 | 4 | 52 | 205 | 220 | 215 | 170 | 180 | 180 | 145 | 150 | 155 | 4-18 | 8-18 | 8-18 | 3 | 290 | 165 | 7.5 |
| 125 | 5 | 56 | 235 | 250 | 2445 | 200 | 210 | 210 | 175 | 172 | 185 | 4-18 | 8-18 | 8-18 | 3 | 290 | 190 | 11 |
| 150 | 6 | 56 | 260 | 285 | 280 | 225 | 240 | 240 | 200 | 198 | 210 | 4-18 | 8-23 | 8-23 | 3 | 290 | 215 | 16 |
| 200 | 8 | 60 | 315 | 340 | 335 | 280 | 295 | 295 | 255 | 252 | 265 | 4-18 | 8-23 | 12-23 | 3 | 320 | 275 | 18 |
注:為了方便客戶安裝要求,本表給定的數值系與蝶閥連接的標準法蘭尺寸,簡圖中尺寸代號僅是其中一部分。
溫馨提示:
本文中所有文字、數據、圖片均只適用于參考。需要查看更多的D71(半襯)、D71Fs(全襯)對夾襯氟塑料蝶閥性能參數、結構尺寸參數、價格等詳情,或要求印刷樣本,請聯系我們。
主營產品:氣動調節閥 - 電動調節閥 - 自力式調節閥
版版權所有 © 上海大田閥門管道工程有限公司
地址:上海市浦東新區川宏路528號宏圖大樓5樓
